X

Vytenio 18

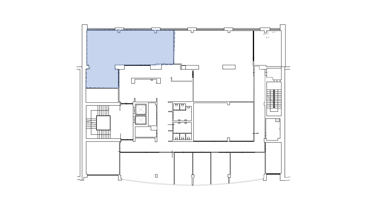
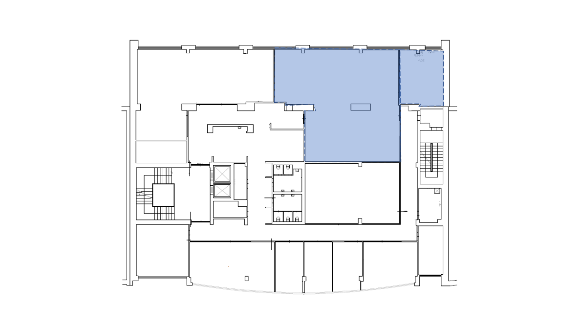
Vytenio g. 18

Tipas Biurai
Pastato klasė B
Bendras pastato plotas 1.523 (kv. m)
Bendras aukšto plotas 300 (kv. m)
Nuomojamas plotas 320 (kv. m)
Nuomos kaina per mėn. 8,50 EUR/kv. m
Parkavimo vietų skaičius 17
Galimas įsikėlimas Patalpos laisvos
Rekonstrukcijos metai 2000

Objekto išskirtinumas

  • Biuro paskirties patalpos yra atgimstančiame Naujamiesčio mikrorajone - vos kelios minutės nuo Vilniaus miesto centro ir senamiesčio
  • Pastatą sudaro 5 aukštų biuro patalpos, mansarda (gali būti naudojamos kaip biuro patalpos), rūsys ir techninė patalpa
  • Pastatas visiškai renovuotas 2000 metais
  • Jame esančios patalpos yra geros būklės, išlaikyta reprezentacinė kompanijos būstinei būdinga išvaizda. Kartu - pastatas prisideda prie mikrorajono atgimino, įsilieja į urbanistinį miesto vaizdą

Vieta mieste

  • Objektas yra vos 7 minutės nuo Gedimino prospekto - tiek viešuoju, tiek privačiu transportu galima pasiekti įvairias parduotuves, restoranus, kavines, kultūrines vietas, valstybines įstaigas
  • Per 10 minučių galima pasiekti Tarptautinį Vilniaus oro uostą
  • Objekto kaimynystė gana įvairi - nuo gyvenamųjų daugiabučių namų iki komercinių patalpų

„Newsec“ biurų sprendimų komanda padės rasti jums tinkamiausią komercinio NT sprendimą – atsižvelgiame į jūsų unikalius poreikius bei viziją. Specializuojamės nuomos srityse ir puikiai išmanome visą NT vertės grandinę. Susidomėjote? Kreipkitės ir „Newsec“ komanda padės jums suderinti nuomos sutarties sąlygas ir užtikrinti sklandų įsikėlimą į patalpas.

Kainos pateiktos be PVM

Kontaktai

Susisiekti

Prenumeruokite naujienlaiškį apie naujus komercinius objektus

Patalpos šiame pastate

Panašūs objektai

Atsisiųsti PDF brošiūrą